GW Geiseltaler Wohnungsgesellschaft mbH, Eduard-Dörge-Platz 7, 06242 Braunsbedra

Schöner Wohnen in Braunsbedra - Unsere Wohnungsangebote

Drucken

*WIR SANIEREN FÜR SIE* (10334)

 
Kastanienstraße 4 | 06259 Braunsbedra OT Frankleben Deutschland Braunsbedra OT Frankleben
Etage:
1. OG
Etagenanzahl:
3
Kaltmiete:
311,00 €
Warmmiete:
498,00 €
Nebenkosten:
77,00 €
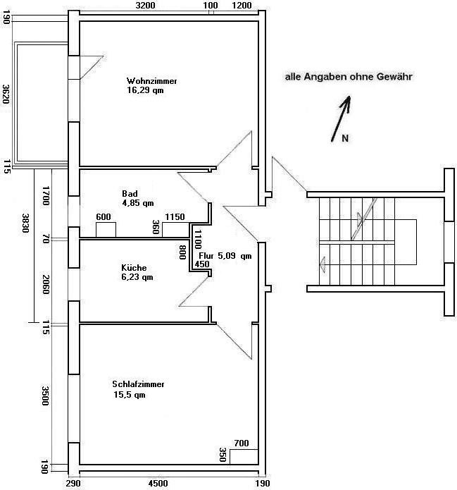
Wohnfläche ca.:
47.8 m²
Zimmer:
2
Schlafzimmer:
1
Badezimmer:
1

Objektinformationen

Kaltmiete:
311,00 €
Warmmiete:
498,00 €
Nebenkosten:
77,00 €
Heizkosten:
110,00 €
Kaution:
622,00 €
Wohnfläche ca.:
47,80 m²
Zimmer:
2,0
Schlafzimmer:
1
Badezimmer:
1
Balkone:
1

Ausstattung

Badewanne
Fliesenboden
Linoleumboden
Zentralheizung
Oelbefeuerung

Zustand

Baujahr:
1960
Energieeffizienzklasse
C

Energiepass

Energieausweis Energieausweis
Energiepass Art:
Verbrauch
gültig bis:
07-2028
Verbrauchkennwert:
86 kWh/(m²a)
mit Warmwasser
Primärenergieträger:
Öl
Energieeffizienzklasse:
C

Verwaltung

verfügbar ab
01.03.2026

Objektbeschreibung

Der Ortsteil Frankleben befindet sich im Geiseltal, nordöstlich von Braunsbedra. Als öffentliche Verkehrsmittel stehen Bus und Bahn zur Verfügung. Durch die Nähe zur A38 sind die Metropolen Leipzig und Halle schnell zu erreichen. Bis zum Badestrand in Frankleben sind es ca. 15 Fahrradminuten. Dort finden Sie herrlichen Sand, großzügige Liegewiesen sowie einen Imbiss.

Ausstattung

Bad mit Badewanne, Balkon
WIR SANIEREN FÜR SIE!!!!!!!

Ihre neue Wohnungbefindet sich im Ortsteil Frankleben und...
... ist bezugsfertig ab 01.03.2026
... wird tapeziert mit neuer Raufasertapete
... hat eine praktische Abstellnische für diverse Haushaltsgegenstände im Flur
... hat ein modernes Tageslichtbad mit Wanne sowie Handtuchheizkörper
... bekommt einen neuen Fliesenspiegel in der Küche
... bekommt einen neuen modernen PVC-Belag in allen Räumen

Die Beispielbilder zeigen eine vergleichbare Wohnung.
Gerne stehen wir Ihnen für Fragen und einen Besichtigungstermin zur Verfügung.

Ihr Ansprechpartner

GW Geiseltaler Wohnungsgesellschaft mbH
Eduard-Dörge-Platz 7
06242 Braunsbedra
Deutschland
E-Mail (zentral)
Diese E-Mail-Adresse ist vor Spambots geschützt! Zur Anzeige muss JavaScript eingeschaltet sein.
Telefon
034633 9099-99

Kontaktformular

Free Joomla templates by Ltheme