GW Geiseltaler Wohnungsgesellschaft mbH, Eduard-Dörge-Platz 7, 06242 Braunsbedra

Drucken

WILLKOMMEN IM GEISELTAL (10343)

 
Leihaer Straße 80A | 06242 Braunsbedra OT Roßbach Deutschland Braunsbedra OT Roßbach
Etage:
2. OG
Etagenanzahl:
4
Kaltmiete:
294,00 €
Warmmiete:
486,00 €
Nebenkosten:
79,00 €
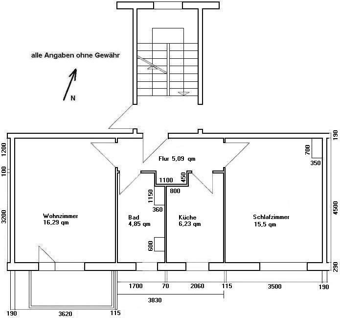
Wohnfläche ca.:
49 m²
Zimmer:
2
Schlafzimmer:
1
Badezimmer:
1

Objektinformationen

Kaltmiete:
294,00 €
Warmmiete:
486,00 €
Nebenkosten:
79,00 €
Heizkosten:
113,00 €
Kaution:
588,00 €
Wohnfläche ca.:
49,00 m²
Zimmer:
2,0
Schlafzimmer:
1
Badezimmer:
1
Balkone:
1

Ausstattung

Badewanne
Fliesenboden
Linoleumboden
Zentralheizung

Zustand

Baujahr:
1970
Energieeffizienzklasse
D

Energiepass

Energieausweis Energieausweis
Energiepass Art:
Verbrauch
gültig bis:
06-2028
Verbrauchkennwert:
105 kWh/(m²a)
mit Warmwasser
Primärenergieträger:
Gas
Energieeffizienzklasse:
D

Verwaltung

verfügbar ab
01.02.2026

Objektbeschreibung

Roßbach ist ein Ortsteil von Braunsbedra im Saalekreis in Sachsen-Anhalt in Deutschland. Der Ort liegt rund 15 km südlich von Merseburg unweit der Ausfahrt 26 der A 38.
Der Ort bietet Ihnen ein gepflegtes und ruhiges Wohnumfeld sowie eine öffentliche Verkehrsanbindung
Der Hassesee ist nur 10 Fahrradminuten entfernt.

Ausstattung

Bad mit Badewanne, Balkon, PKW-Stellplatz möglich, wenn verfügbar
Die sanierte 2-Raumwohnung befindet sich in der 3. Etage eines Mehrfamilienhauses und besitzt folgende Ausstattungsmerkmale:
- gebrauchte Tapete, auf Wunsch wird die Wohnung auch malermäßig instandgesetzt (Grundmiete zzgl. 0,50 €/m²/Monat)
- schöner Balkon mit Blick ins Grüne
- Tageslichtbad mit Wanne
- Küche mit Fliesenspiegel
- moderner PVC-Belag in allen Räumen
- PKW-Stellplatz möglich, wenn verfügbar

Wir zeigen Ihnen Beispielbilder einer vergleichbaren Wohnung.

Gerne stehen wir Ihnen für Fragen und einen Besichtigungstermin zur Verfügung.

Ihr Ansprechpartner

GW Geiseltaler Wohnungsgesellschaft mbH
Eduard-Dörge-Platz 7
06242 Braunsbedra
Deutschland
E-Mail (zentral)
Diese E-Mail-Adresse ist vor Spambots geschützt! Zur Anzeige muss JavaScript eingeschaltet sein.
Telefon
034633 9099-99

Kontaktformular

Free Joomla templates by Ltheme