GW Geiseltaler Wohnungsgesellschaft mbH, Eduard-Dörge-Platz 7, 06242 Braunsbedra

Drucken

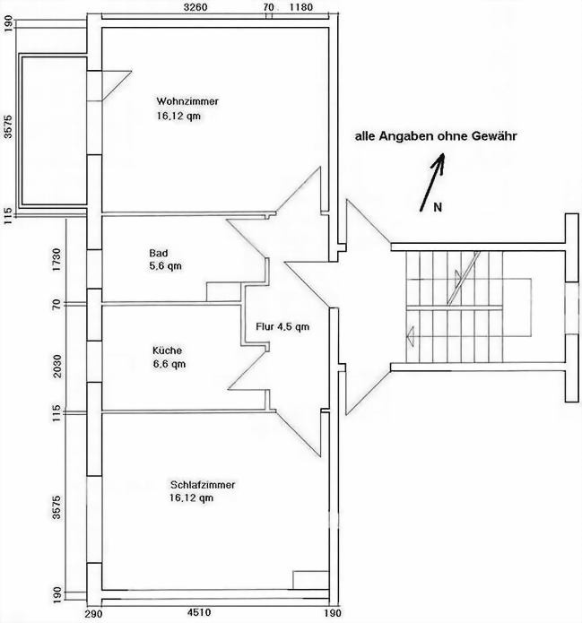
2-Raumwohnung im Erdgeschoss mit bodengleicher Dusche (10339)

 
Merseburger Straße 36 | 06242 Braunsbedra Deutschland Braunsbedra
Etage:
EG
Etagenanzahl:
4
Kaltmiete:
292,00 €
Warmmiete:
458,00 €
Nebenkosten:
78,00 €
Wohnfläche ca.:
48.39 m²
Zimmer:
2
Schlafzimmer:
1
Badezimmer:
1

Objektinformationen

Kaltmiete:
292,00 €
Warmmiete:
458,00 €
Nebenkosten:
78,00 €
Heizkosten:
88,00 €
Kaution:
584,00 €
Wohnfläche ca.:
48,39 m²
Zimmer:
2,0
Schlafzimmer:
1
Badezimmer:
1
Balkone:
1

Ausstattung

Dusche
Fliesenboden
Linoleumboden
Fernwärme

Zustand

Baujahr:
1965
Energieeffizienzklasse
C

Energiepass

Energieausweis Energieausweis
Energiepass Art:
Verbrauch
gültig bis:
06-2028
Verbrauchkennwert:
91 kWh/(m²a)
mit Warmwasser
Primärenergieträger:
Fernwärme
Energieeffizienzklasse:
C

Verwaltung

verfügbar ab
01.02.2026

Objektbeschreibung

Braunsbedra im Geiseltal ist eine attraktive Stadt in Sachsen-Anhalt, die sich durch ihre Lage am Geiseltalsee und ihre vielfältigen Vorzüge auszeichnet:
- Braunsbedra liegt malerisch am Ufer des Geiseltalsees, einem der größten künstlichen Seen Deutschlands. Dieser See bietet nicht nur eine atemberaubende Kulisse, sondern auch zahlreiche Möglichkeiten für Wassersport, Angeln und Erholung.
- Die Umgebung von Braunsbedra ist von grünen Wäldern sowie drei weiteren Seen (Hasse See, Großkaynaer See & Runstedter See) umgeben, die zum Wandern, Radfahren und Picknicken einladen.
- Braunsbedra liegt verkehrsgünstig an der Autobahn A38, was den Zugang zu größeren Städten wie Halle (Saale) und Leipzig erleichtert. Auch öffentliche Verkehrsmittel sind gut ausgebaut.
- Die Stadt bietet eine Vielzahl von Einkaufsmöglichkeiten und Restaurants, um den täglichen Bedarf zu decken und kulinarische Vielfalt zu genießen.
- Braunsbedra verfügt über Kindergärten, Grundschulen und eine weiterführende Schule.

Ausstattung

Bad mit Dusche, Balkon, PKW-Stellplatz möglich, wenn verfügbar
Die sanierte 2-Raumwohnung besitzt einen ansprechenden Grundriss und befindet sich im Erdgeschoss eines gepflegten Mehrfamilienhauses.
Sie besitzt folgende Ausstattungsmerkmale:
- bezugsfertig ab 01.02.2026
- tapeziert mit Raufasertapete
- schöner Balkon
- praktische Abstellnische für diverse Haushaltsgegenstände im Flur
- Highspeed-Internet (bis zu 1000 Mbit/s) verfügbar
- modernes Tageslichtbad mit bodengleicher Dusche sowie Handtuchheizkörper
- Küche mit Fliesenspiegel
- moderner PVC-Belag in allen Räumen
- PKW-Stellplatz möglich, wenn verfügbar

Gerne stehen wir Ihnen für Fragen und einen Besichtigungstermin zur Verfügung.

Ihr Ansprechpartner

GW Geiseltaler Wohnungsgesellschaft mbH
Eduard-Dörge-Platz 7
06242 Braunsbedra
Deutschland
E-Mail (zentral)
Diese E-Mail-Adresse ist vor Spambots geschützt! Zur Anzeige muss JavaScript eingeschaltet sein.
Telefon
034633 9099-99

Kontaktformular

Free Joomla templates by Ltheme