Willkommen im Geiseltal - Wir sanieren für Sie! (11812)
Goethestraße
20 |
06242
Braunsbedra
Deutschland
Braunsbedra
Etage:
1. OG
Etagenanzahl:
3
Kaltmiete:
363,00 €
Warmmiete:
601,00 €
Nebenkosten:
119,00 €
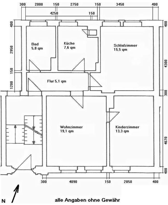
Wohnfläche ca.:
66 m²
Zimmer:
3
Schlafzimmer:
2
Badezimmer:
1
Objektinformationen
Kaltmiete:
363,00 €
Warmmiete:
601,00 €
Nebenkosten:
119,00 €
Heizkosten:
119,00 €
Kaution:
726,00 €
Wohnfläche ca.:
66,00 m²
Zimmer:
3,0
Schlafzimmer:
2
Badezimmer:
1
Ausstattung
Badewanne
✓
Fliesenboden
✓
Linoleumboden
✓
Fernwärme
✓
Zustand
Baujahr:
1957
Energieeffizienzklasse
C
Energiepass
Energiepass Art:
Verbrauch
gültig bis:
06-2028
Verbrauchkennwert:
98.00 kWh/(m²a)
mit Warmwasser
✓
Primärenergieträger:
Fernwärme
Energieeffizienzklasse:
C
Verwaltung
verfügbar ab
01.09.2026
Objektbeschreibung
Braunsbedra im Geiseltal ist eine attraktive Stadt in Sachsen-Anhalt, die sich durch ihre Lage am Geiseltalsee und ihre vielfältigen Vorzüge auszeichnet:
- Braunsbedra liegt malerisch am Ufer des Geiseltalsees, einem der größten künstlichen Seen Deutschlands. Dieser See bietet nicht nur eine atemberaubende Kulisse, sondern auch zahlreiche Möglichkeiten für Wassersport, Angeln und Erholung.
- Die Umgebung von Braunsbedra ist von grünen Wäldern sowie drei weiteren Seen (Hasse See, Großkaynaer See & Runstedter See) umgeben, die zum Wandern, Radfahren und Picknicken einladen.
- Braunsbedra liegt verkehrsgünstig an der Autobahn A38, was den Zugang zu größeren Städten wie Halle (Saale) und Leipzig erleichtert. Auch öffentliche Verkehrsmittel sind gut ausgebaut.
- Die Stadt bietet eine Vielzahl von Einkaufsmöglichkeiten und Restaurants, um den täglichen Bedarf zu decken und kulinarische Vielfalt zu genießen.
- Braunsbedra verfügt über Kindergärten, Grundschulen und eine weiterführende Schule.
- Braunsbedra liegt malerisch am Ufer des Geiseltalsees, einem der größten künstlichen Seen Deutschlands. Dieser See bietet nicht nur eine atemberaubende Kulisse, sondern auch zahlreiche Möglichkeiten für Wassersport, Angeln und Erholung.
- Die Umgebung von Braunsbedra ist von grünen Wäldern sowie drei weiteren Seen (Hasse See, Großkaynaer See & Runstedter See) umgeben, die zum Wandern, Radfahren und Picknicken einladen.
- Braunsbedra liegt verkehrsgünstig an der Autobahn A38, was den Zugang zu größeren Städten wie Halle (Saale) und Leipzig erleichtert. Auch öffentliche Verkehrsmittel sind gut ausgebaut.
- Die Stadt bietet eine Vielzahl von Einkaufsmöglichkeiten und Restaurants, um den täglichen Bedarf zu decken und kulinarische Vielfalt zu genießen.
- Braunsbedra verfügt über Kindergärten, Grundschulen und eine weiterführende Schule.
Ausstattung
Bad mit Badewanne, PKW-Stellplatz möglich, wenn verfügbar
WIR SANIEREN FÜR SIE!!!!!!!
Die Beispielbilder zeigen eine vergleichbare Wohnung.
Auf Wunsch setzen wir Ihre neue Wohnung zusätzlich auch malermäßig instand (Grundmiete zzgl. 0,50 €/m²/Monat)
Ihre neue Wohnung bekommt:
- ein modernes Bad, auf Wunsch mit bodengleicher Dusche oder Wanne sowie Handtuchheizkörper
- eine Küche mit Fliesenspiegel
- einen modernen PVC-Belag in allen Räumen
- PKW-Stellplatz möglich, wenn verfügbar
Gerne stehen wir Ihnen für Fragen und einen Besichtigungstermin zur Verfügung.
WIR SANIEREN FÜR SIE!!!!!!!
Die Beispielbilder zeigen eine vergleichbare Wohnung.
Auf Wunsch setzen wir Ihre neue Wohnung zusätzlich auch malermäßig instand (Grundmiete zzgl. 0,50 €/m²/Monat)
Ihre neue Wohnung bekommt:
- ein modernes Bad, auf Wunsch mit bodengleicher Dusche oder Wanne sowie Handtuchheizkörper
- eine Küche mit Fliesenspiegel
- einen modernen PVC-Belag in allen Räumen
- PKW-Stellplatz möglich, wenn verfügbar
Gerne stehen wir Ihnen für Fragen und einen Besichtigungstermin zur Verfügung.
Ihr Ansprechpartner
GW Geiseltaler Wohnungsgesellschaft mbH
Eduard-Dörge-Platz 7
06242 Braunsbedra
Deutschland
E-Mail (zentral)
Telefon
034633 9099-99