GW Geiseltaler Wohnungsgesellschaft mbH, Eduard-Dörge-Platz 7, 06242 Braunsbedra

Drucken

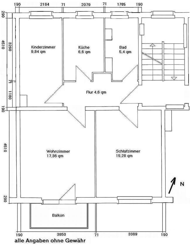
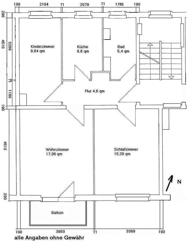
Gemütliche 3-Raumwohnung mit Balkon im Geiseltal (11811)

 
Goethestraße 30 | 06242 Braunsbedra Deutschland Braunsbedra
Etage:
1. OG
Etagenanzahl:
4
Kaltmiete:
353,00 €
Warmmiete:
563,00 €
Nebenkosten:
105,00 €
Wohnfläche ca.:
57.8 m²
Zimmer:
3
Schlafzimmer:
2
Badezimmer:
1

Objektinformationen

Kaltmiete:
353,00 €
Warmmiete:
563,00 €
Nebenkosten:
105,00 €
Heizkosten:
105,00 €
Kaution:
706,00 €
Wohnfläche ca.:
57,80 m²
Zimmer:
3,0
Schlafzimmer:
2
Badezimmer:
1
Balkone:
1

Ausstattung

Dusche
Fliesenboden
Linoleumboden
Fernwärme

Zustand

Baujahr:
1959
Energieeffizienzklasse
C

Energiepass

Energieausweis Energieausweis
Energiepass Art:
Verbrauch
gültig bis:
06-2028
Verbrauchkennwert:
79.00 kWh/(m²a)
mit Warmwasser
Primärenergieträger:
Fernwärme
Energieeffizienzklasse:
C

Verwaltung

verfügbar ab
01.05.2026

Objektbeschreibung

Braunsbedra befindet sich am gut erschlossenen Südufer des Geiseltalsees und bietet zahlreiche Möglichkeiten der aktiven Erholung. Zur Marina der Stadt, welche eine 190 m lange Seebrücke besitzt, fahren Sie mit dem Fahrrad nur ca. 10 Minuten. Alle Geschäfte des täglichen Bedarfs sind fußläufig zu erreichen.

Ausstattung

Bad mit Dusche, Balkon, PKW-Stellplatz möglich, wenn verfügbar
Die sanierte 3-Raumwohnung besitzt einen ansprechenden Grundriss und befindet sich im 1. Obergeschoss eines gepflegten Mehrfamilienhauses.
Sie besitzt folgende Ausstattungsmerkmale:
- tapeziert mit Raufasertapete
- schöner Balkon
- praktische Abstellnische für diverse Haushaltsgegenstände im Flur
- Highspeed-Internet (bis zu 1000 Mbit/s) verfügbar
- modernes Tageslichtbad mit Dusche sowie Handtuchheizkörper
- Küche mit Fliesenspiegel
- moderner PVC-Belag in allen Räumen
- PKW-Stellplatz möglich, wenn verfügbar

Gerne stehen wir Ihnen für Fragen und einen Besichtigungstermin zur Verfügung.

Ihr Ansprechpartner

GW Geiseltaler Wohnungsgesellschaft mbH
Eduard-Dörge-Platz 7
06242 Braunsbedra
Deutschland
E-Mail (zentral)
Diese E-Mail-Adresse ist vor Spambots geschützt! Zur Anzeige muss JavaScript eingeschaltet sein.
Telefon
034633 9099-99

Kontaktformular

Free Joomla templates by Ltheme