Ihr neues Zuhause: Stilvolle 3-Zimmer-Wohnung mit Wohlfühlcharakter (13379)
Mühlstraße
12 |
06242
Braunsbedra OT Roßbach
Deutschland
Braunsbedra OT Roßbach
Etage:
EG
Etagenanzahl:
2
Kaltmiete:
279,00 €
Warmmiete:
488,00 €
Nebenkosten:
92,00 €
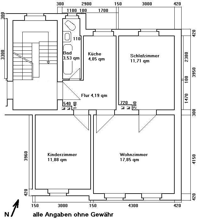
Wohnfläche ca.:
50.7 m²
Zimmer:
3
Schlafzimmer:
2
Badezimmer:
1
Objektinformationen
Kaltmiete:
279,00 €
Warmmiete:
488,00 €
Nebenkosten:
92,00 €
Heizkosten:
117,00 €
Kaution:
558,00 €
Wohnfläche ca.:
50,70 m²
Zimmer:
3,0
Schlafzimmer:
2
Badezimmer:
1
Ausstattung
Dusche
✓
Fliesenboden
✓
Linoleumboden
✓
Zentralheizung
✓
Gasbefeuerung
✓
Zustand
Baujahr:
1920
Energieeffizienzklasse
F
Energiepass
Energiepass Art:
Verbrauch
gültig bis:
07-2028
Verbrauchkennwert:
189.00 kWh/(m²a)
mit Warmwasser
✓
Primärenergieträger:
Gas
Energieeffizienzklasse:
F
Verwaltung
verfügbar ab
01.08.2026
Objektbeschreibung
Das Gebäude liegt am Stadtrand von Roßbach in grüner Lage und beherbergt auf 2 Etagen 4 Mieteinheiten. Zum Hassesee benötigt man ca. 10 Minuten zu Fuß, eine Bushaltestelle befindet sich in unmittelbarer Umgebung.
Die Anbindung zur A38, nach Halle und Leipzig ist gegeben, nach Braundbedra benötigt man mit dem Auto 5 Minuten. Hier findet man Ärzte, Apotheken, zahlreiche Einkaufsmöglichkeiten, Kitas, Schulen und die Seebrücke am Geiseltalsee.
Die Anbindung zur A38, nach Halle und Leipzig ist gegeben, nach Braundbedra benötigt man mit dem Auto 5 Minuten. Hier findet man Ärzte, Apotheken, zahlreiche Einkaufsmöglichkeiten, Kitas, Schulen und die Seebrücke am Geiseltalsee.
Ausstattung
Bad mit Dusche, PKW-Stellplatz möglich, wenn verfügbar
Diese liebevoll sanierte 3-Raum-Wohnung im Erdgeschoss eines gepflegten Mehrfamilienhauses vereint modernen Wohnkomfort mit einer einladenden Atmosphäre – ideal für alle, die sich sofort zuhause fühlen möchten.
Schon beim Betreten überzeugt die Wohnung durch ihre hellen, freundlichen Räume und die hochwertige Ausstattung. Das moderne Tageslichtbad sorgt mit seiner stilvollen Dusche und dem praktischen Handtuchheizkörper für einen angenehmen Start in den Tag. In der Küche bietet ein geschmackvoller Fliesenspiegel nicht nur Funktionalität, sondern auch eine ansprechende Optik.
Die glatt gespachtelten Wände und das zeitgemäße Laminat in allen Wohnräumen schaffen ein harmonisches Gesamtbild und bieten die perfekte Grundlage für Ihre individuelle Einrichtung.
Ein PKW-Stellplatz kann – je nach Verfügbarkeit – zusätzlich angemietet werden und rundet das attraktive Angebot ab.
Lassen Sie sich bei einer Besichtigung von dieser charmanten Wohnung begeistern – wir freuen uns darauf, Ihnen Ihr mögliches neues Zuhause persönlich vorzustellen!
Diese liebevoll sanierte 3-Raum-Wohnung im Erdgeschoss eines gepflegten Mehrfamilienhauses vereint modernen Wohnkomfort mit einer einladenden Atmosphäre – ideal für alle, die sich sofort zuhause fühlen möchten.
Schon beim Betreten überzeugt die Wohnung durch ihre hellen, freundlichen Räume und die hochwertige Ausstattung. Das moderne Tageslichtbad sorgt mit seiner stilvollen Dusche und dem praktischen Handtuchheizkörper für einen angenehmen Start in den Tag. In der Küche bietet ein geschmackvoller Fliesenspiegel nicht nur Funktionalität, sondern auch eine ansprechende Optik.
Die glatt gespachtelten Wände und das zeitgemäße Laminat in allen Wohnräumen schaffen ein harmonisches Gesamtbild und bieten die perfekte Grundlage für Ihre individuelle Einrichtung.
Ein PKW-Stellplatz kann – je nach Verfügbarkeit – zusätzlich angemietet werden und rundet das attraktive Angebot ab.
Lassen Sie sich bei einer Besichtigung von dieser charmanten Wohnung begeistern – wir freuen uns darauf, Ihnen Ihr mögliches neues Zuhause persönlich vorzustellen!
Ihr Ansprechpartner
GW Geiseltaler Wohnungsgesellschaft mbH
Eduard-Dörge-Platz 7
06242 Braunsbedra
Deutschland
E-Mail (zentral)
Telefon
034633 9099-99