Gemütliche 3-Raumwohnung mit Balkon im Geiseltal (11423)
Goethestraße
30 |
06242
Braunsbedra
Deutschland
Braunsbedra
Etage:
1. OG
Etagenanzahl:
4
Kaltmiete:
347,00 €
Warmmiete:
545,00 €
Nebenkosten:
93,00 €
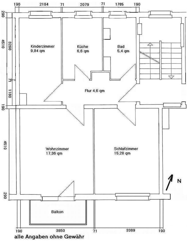
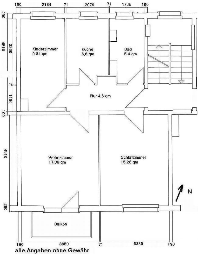
Wohnfläche ca.:
57.8 m²
Zimmer:
3
Schlafzimmer:
2
Badezimmer:
1
Objektinformationen
Kaltmiete:
347,00 €
Warmmiete:
545,00 €
Nebenkosten:
93,00 €
Heizkosten:
105,00 €
Kaution:
694,00 €
Wohnfläche ca.:
57,80 m²
Zimmer:
3,0
Schlafzimmer:
2
Badezimmer:
1
Balkone:
1
Ausstattung
Dusche
✓
Fliesenboden
✓
Linoleumboden
✓
Fernwärme
✓
Zustand
Baujahr:
1959
Energieeffizienzklasse
C
Energiepass
Energiepass Art:
Bedarf
gültig bis:
06-2028
Verbrauchkennwert:
79.00 kWh/(m²a)
mit Warmwasser
✓
Endenergiebedarf:
0.00 kWh/(m²a)
Primärenergieträger:
Fernwärme
Energieeffizienzklasse:
C
Verwaltung
verfügbar ab
01.05.2026
Objektbeschreibung
Braunsbedra befindet sich am gut erschlossenen Südufer des Geiseltalsees und bietet zahlreiche Möglichkeiten der aktiven Erholung. Zur Marina der Stadt, welche eine 190 m lange Seebrücke besitzt, fahren Sie mit dem Fahrrad nur ca. 10 Minuten. Alle Geschäfte des täglichen Bedarfs sind fußläufig zu erreichen.
Ausstattung
Bad mit Dusche, Balkon, PKW-Stellplatz möglich, wenn verfügbar
Die sanierte 3-Raumwohnung besitzt einen ansprechenden Grundriss und befindet sich im 1. Obergeschoss eines gepflegten Mehrfamilienhauses.
Sie besitzt folgende Ausstattungsmerkmale:
- tapeziert mit Raufasertapete
- schöner Balkon
- praktische Abstellnische für diverse Haushaltsgegenstände im Flur
- Highspeed-Internet (bis zu 1000 Mbit/s) verfügbar
- modernes Tageslichtbad mit Dusche sowie Handtuchheizkörper
- Küche mit Fliesenspiegel
- moderner PVC-Belag in allen Räumen
- PKW-Stellplatz möglich, wenn verfügbar
Gerne stehen wir Ihnen für Fragen und einen Besichtigungstermin zur Verfügung.
Die sanierte 3-Raumwohnung besitzt einen ansprechenden Grundriss und befindet sich im 1. Obergeschoss eines gepflegten Mehrfamilienhauses.
Sie besitzt folgende Ausstattungsmerkmale:
- tapeziert mit Raufasertapete
- schöner Balkon
- praktische Abstellnische für diverse Haushaltsgegenstände im Flur
- Highspeed-Internet (bis zu 1000 Mbit/s) verfügbar
- modernes Tageslichtbad mit Dusche sowie Handtuchheizkörper
- Küche mit Fliesenspiegel
- moderner PVC-Belag in allen Räumen
- PKW-Stellplatz möglich, wenn verfügbar
Gerne stehen wir Ihnen für Fragen und einen Besichtigungstermin zur Verfügung.
Ihr Ansprechpartner
GW Geiseltaler Wohnungsgesellschaft mbH
Eduard-Dörge-Platz 7
06242 Braunsbedra
Deutschland
E-Mail (zentral)
Telefon
034633 9099-99