3-Raum-Wohnung mit Balkon - Erstbezug nach Sanierung (11490)
Weißenfelser Straße
10B |
06259
Braunsbedra OT Frankleben
Deutschland
Braunsbedra OT Frankleben
Etage:
4. OG
Etagenanzahl:
5
Kaltmiete:
365,00 €
Warmmiete:
603,00 €
Nebenkosten:
98,00 €
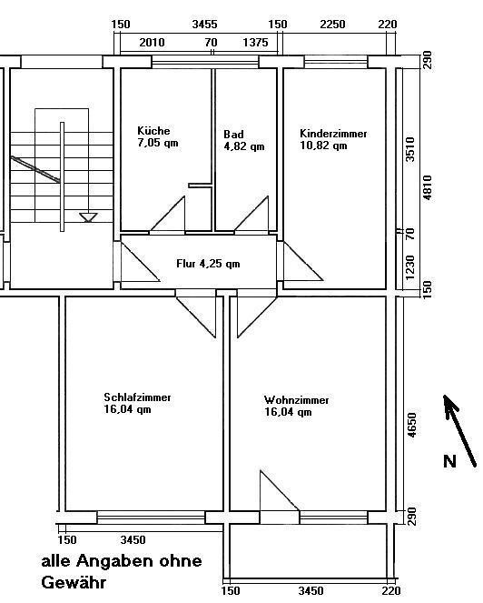
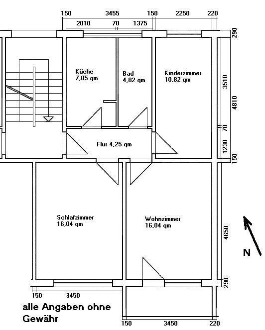
Wohnfläche ca.:
60.68 m²
Zimmer:
3
Schlafzimmer:
2
Badezimmer:
1
Objektinformationen
Kaltmiete:
365,00 €
Warmmiete:
603,00 €
Nebenkosten:
98,00 €
Heizkosten:
140,00 €
Kaution:
730,00 €
Wohnfläche ca.:
60,68 m²
Zimmer:
3,0
Schlafzimmer:
2
Badezimmer:
1
Balkone:
1
Ausstattung
Badewanne
✓
Fliesenboden
✓
Linoleumboden
✓
Zentralheizung
✓
Zustand
Baujahr:
1977
Energieeffizienzklasse
C
Energiepass
Energiepass Art:
Bedarf
gültig bis:
07-2028
Verbrauchkennwert:
86.00 kWh/(m²a)
mit Warmwasser
✓
Endenergiebedarf:
0.00 kWh/(m²a)
Primärenergieträger:
Flüssiggas
Energieeffizienzklasse:
C
Verwaltung
verfügbar ab
01.07.2026
Objektbeschreibung
Der Ortsteil Frankleben befindet sich im Geiseltal, nordöstlich von Braunsbedra. Als öffentliche Verkehrsmittel stehen Bus und Bahn zur Verfügung. Durch die Nähe zur A38 sind die Metropolen Leipzig und Halle schnell zu erreichen. Bis zum Badestrand in Frankleben sind es ca. 15 Fahrradminuten. Dort finden Sie herrlichen Sand, großzügige Liegewiesen sowie einen Imbiss.
Ausstattung
Bad mit Badewanne, Balkon
Die GW Geiseltaler Wohnungsgesellschaft mbH vermietet Wohnungen verschiedener Größen mit und ohne Balkon.
WIR SANIEREN FÜR SIE!
Die abgebildete Beispielwohnung ist ca. 60 m² groß und befindet sich in der Weißenfelser Straße in Braunsbedra OT Frankleben.
Gerne stehen wir Ihnen für Fragen und einen Besichtigungstermin zur Verfügung.
Die GW Geiseltaler Wohnungsgesellschaft mbH vermietet Wohnungen verschiedener Größen mit und ohne Balkon.
WIR SANIEREN FÜR SIE!
Die abgebildete Beispielwohnung ist ca. 60 m² groß und befindet sich in der Weißenfelser Straße in Braunsbedra OT Frankleben.
Gerne stehen wir Ihnen für Fragen und einen Besichtigungstermin zur Verfügung.
Ihr Ansprechpartner
GW Geiseltaler Wohnungsgesellschaft mbH
Eduard-Dörge-Platz 7
06242 Braunsbedra
Deutschland
E-Mail (zentral)
Telefon
034633 9099-99