Schöne 2-Raumwohnung mit Balkon im Geiseltal (10576)
Lessingstraße
6 |
06242
Braunsbedra
Deutschland
Braunsbedra
Etage:
2. OG
Etagenanzahl:
3
Kaltmiete:
305,00 €
Warmmiete:
479,00 €
Nebenkosten:
82,00 €
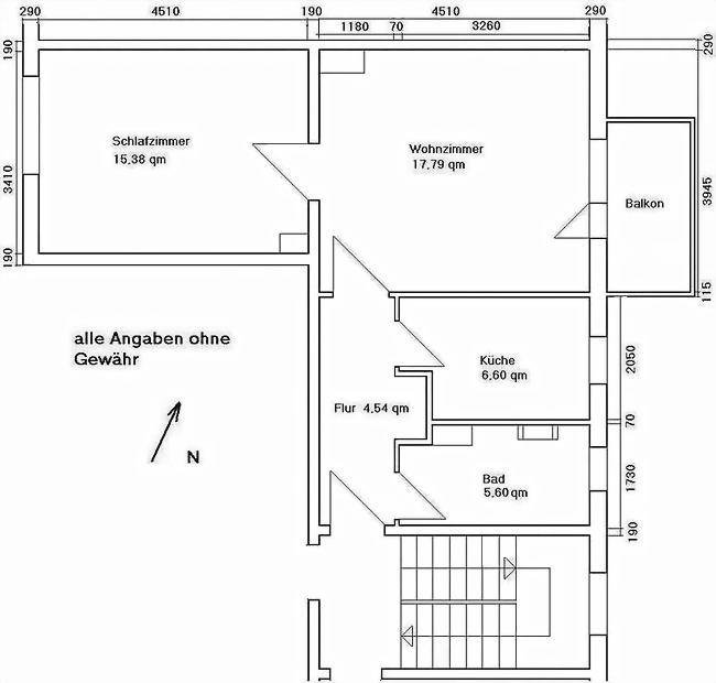
Wohnfläche ca.:
50.7 m²
Zimmer:
2
Schlafzimmer:
1
Badezimmer:
1
Objektinformationen
Kaltmiete:
305,00 €
Warmmiete:
479,00 €
Nebenkosten:
82,00 €
Heizkosten:
92,00 €
Kaution:
610,00 €
Wohnfläche ca.:
50,70 m²
Zimmer:
2,0
Schlafzimmer:
1
Badezimmer:
1
Balkone:
1
Ausstattung
Badewanne
✓
Fliesenboden
✓
Linoleumboden
✓
Fernwärme
✓
Zustand
Baujahr:
1960
Energieeffizienzklasse
C
Energiepass
Energiepass Art:
Verbrauch
gültig bis:
06-2028
Verbrauchkennwert:
84 kWh/(m²a)
mit Warmwasser
✓
Primärenergieträger:
Fernwärme
Energieeffizienzklasse:
C
Verwaltung
verfügbar ab
01.01.2026
Objektbeschreibung
Die Stadt Braunsbedra bietet mit den 4 Seen (Geiseltalsee, Hasse See, Großkaynaer See & Runstedter See) ein extrem ansprechendes Wohnumfeld.
Ihre neue Wohnung befindet sich im Zentrum der Stadt und viele Geschäfte des täglichen Bedarfs sind fußläufig zu erreichen.
Ihre neue Wohnung befindet sich im Zentrum der Stadt und viele Geschäfte des täglichen Bedarfs sind fußläufig zu erreichen.
Ausstattung
Bad mit Badewanne, Balkon
Die helle, freundliche & sanierte 2-Raumwohnung befindet sich in der 3. Etage eines Mehrfamilienhauses und besitzt folgende Ausstattungsmerkmale:
- gebrauchte Tapete, auf Wunsch wird die Wohnung auch malermäßig instandgesetzt (Grundmiete zzgl. 0,50 €/m²/Monat)
- schöner Balkon mit Blick ins Grüne
- Highspeed-Internet (bis zu 1000 Mbit/s) verfügbar
- modernes Tageslichtbad mit Wanne
- Küche mit Fliesenspiegel
- moderner PVC-Belag in allen Räumen
(Wir zeigen Ihnen Beispielbilder einer vergleichbaren Wohnung.)
Gerne stehen wir Ihnen für Fragen und einen Besichtigungstermin zur Verfügung.
Die helle, freundliche & sanierte 2-Raumwohnung befindet sich in der 3. Etage eines Mehrfamilienhauses und besitzt folgende Ausstattungsmerkmale:
- gebrauchte Tapete, auf Wunsch wird die Wohnung auch malermäßig instandgesetzt (Grundmiete zzgl. 0,50 €/m²/Monat)
- schöner Balkon mit Blick ins Grüne
- Highspeed-Internet (bis zu 1000 Mbit/s) verfügbar
- modernes Tageslichtbad mit Wanne
- Küche mit Fliesenspiegel
- moderner PVC-Belag in allen Räumen
(Wir zeigen Ihnen Beispielbilder einer vergleichbaren Wohnung.)
Gerne stehen wir Ihnen für Fragen und einen Besichtigungstermin zur Verfügung.
Ihr Ansprechpartner
GW Geiseltaler Wohnungsgesellschaft mbH
Eduard-Dörge-Platz 7
06242 Braunsbedra
Deutschland
E-Mail (zentral)
Telefon
034633 9099-99