Schöne 2-Raumwohnung im Geiseltal (11864)
H.-Heine-Straße
27b |
06242
Braunsbedra
Deutschland
Braunsbedra
Etage:
2. OG
Etagenanzahl:
3
Kaltmiete:
274,00 €
Warmmiete:
440,00 €
Nebenkosten:
83,00 €
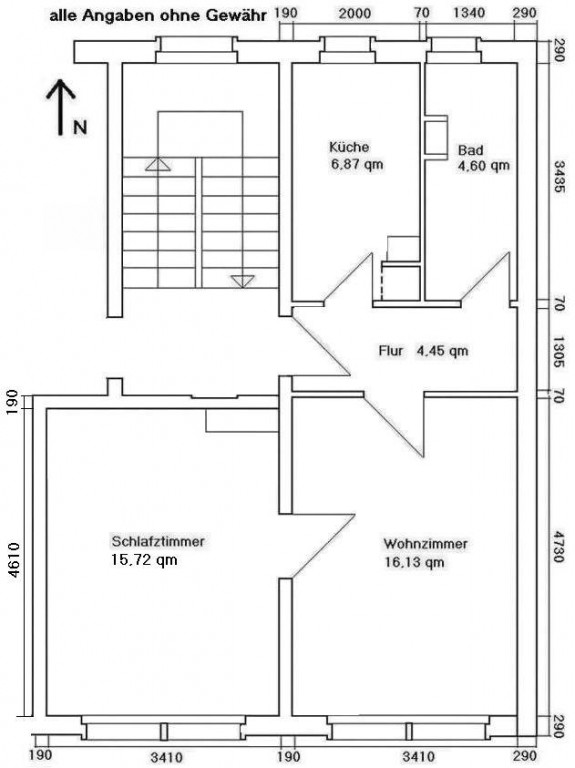
Wohnfläche ca.:
45.59 m²
Zimmer:
2
Schlafzimmer:
1
Objektinformationen
Kaltmiete:
274,00 €
Warmmiete:
440,00 €
Nebenkosten:
83,00 €
Heizkosten:
83,00 €
Kaution:
548,00 €
Wohnfläche ca.:
45,59 m²
Zimmer:
2,0
Schlafzimmer:
1
Ausstattung
Badewanne
✓
Fliesenboden
✓
Linoleumboden
✓
Fernwärme
✓
Zustand
Baujahr:
1958
Energieeffizienzklasse
D
Energiepass
Energiepass Art:
Verbrauch
gültig bis:
06-2028
Verbrauchkennwert:
103.00 kWh/(m²a)
mit Warmwasser
✓
Primärenergieträger:
Fernwärme
Energieeffizienzklasse:
D
Verwaltung
verfügbar ab
01.06.2026
Objektbeschreibung
Braunsbedra befindet sich im Herzen des Geiseltales. Ihre neue Wohnung ist zentral gelegen und viele Geschäfte des täglichen Bedarfs sind fußläufig zu erreichen:
- 5 Gehminuten bis zum Stadtzentrum mit Ärzten und Geschäften
- 1 Gehminuten bis zum Bahnhof
- 15 Gehminuten bis zum Geiseltalsee
- 5 Gehminuten bis zum Stadtzentrum mit Ärzten und Geschäften
- 1 Gehminuten bis zum Bahnhof
- 15 Gehminuten bis zum Geiseltalsee
Ausstattung
Bad mit Badewanne, PKW-Stellplatz möglich, wenn verfügbar
Die gemütliche, helle sowie freundliche 2-Raumwohnung ist folgendermaßen ausgestattet:
- sofort bezugsfertig
- tapeziert mit Raufasertapete
- modernes Tageslichtbad mit Badewanne
- moderner PVC-Belag in allen Räumen
- Kuche mit weißen Bodenfliesen & Fliesenspiegel
- PKW-Stellplatz möglich, wenn verfügbar
Die gemütliche, helle sowie freundliche 2-Raumwohnung ist folgendermaßen ausgestattet:
- sofort bezugsfertig
- tapeziert mit Raufasertapete
- modernes Tageslichtbad mit Badewanne
- moderner PVC-Belag in allen Räumen
- Kuche mit weißen Bodenfliesen & Fliesenspiegel
- PKW-Stellplatz möglich, wenn verfügbar
Ihr Ansprechpartner
GW Geiseltaler Wohnungsgesellschaft mbH
Eduard-Dörge-Platz 7
06242 Braunsbedra
Deutschland
E-Mail (zentral)
Telefon
034633 9099-99