Willkommen in Braunsbedra im Geiseltal - 2-Raum-Wohnung (12397)
H.-Heine-Straße
27a |
06242
Braunsbedra
Deutschland
Braunsbedra
Etage:
1. OG
Etagenanzahl:
3
Kaltmiete:
274,00 €
Warmmiete:
440,00 €
Nebenkosten:
83,00 €
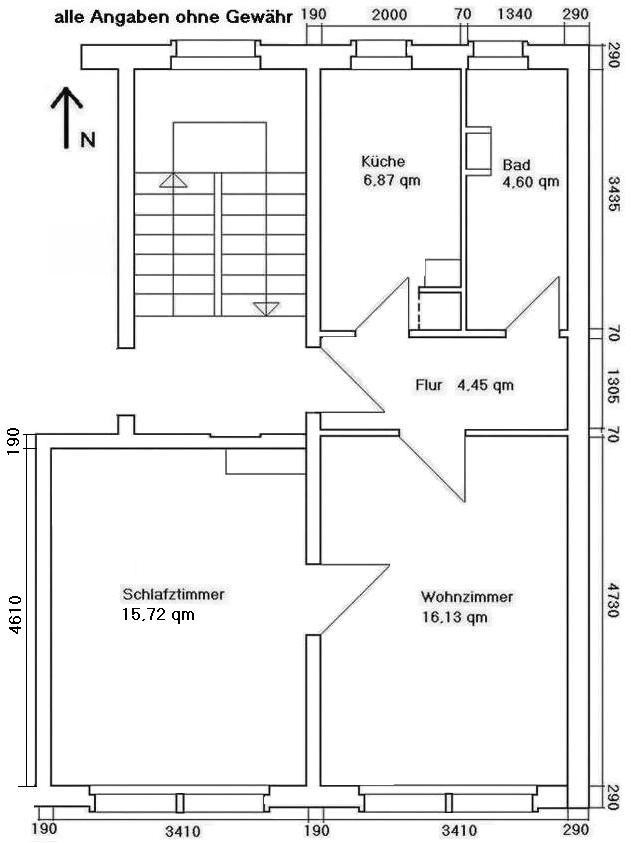
Wohnfläche ca.:
45.59 m²
Zimmer:
2
Schlafzimmer:
1
Badezimmer:
1
Objektinformationen
Kaltmiete:
274,00 €
Warmmiete:
440,00 €
Nebenkosten:
83,00 €
Heizkosten:
83,00 €
Kaution:
548,00 €
Wohnfläche ca.:
45,59 m²
Zimmer:
2,0
Schlafzimmer:
1
Badezimmer:
1
Ausstattung
Badewanne
✓
Fliesenboden
✓
Linoleumboden
✓
Fernwärme
✓
Zustand
Baujahr:
1958
Energieeffizienzklasse
D
Energiepass
Energiepass Art:
Verbrauch
gültig bis:
06-2028
Verbrauchkennwert:
103.00 kWh/(m²a)
mit Warmwasser
✓
Primärenergieträger:
Fernwärme
Energieeffizienzklasse:
D
Verwaltung
verfügbar ab
01.05.2026
Objektbeschreibung
Braunsbedra befindet sich am gut erschlossenen Südufer des Geiseltalsees und bietet zahlreiche Möglichkeiten der aktiven Erholung. Zur Marina der Stadt, welche eine 190 m lange Seebrücke besitzt, fahren Sie mit dem Fahrrad nur ca. 10 Minuten. Alle Geschäfte des täglichen Bedarfs sind fußläufig zu erreichen.
Ausstattung
Bad mit Badewanne, PKW-Stellplatz möglich, wenn verfügbar
Die sanierte, helle sowie freundliche 2-Raumwohnung besitzt einen ansprechenden Grundriss und befindet sich im 1. Obergeschoss eines gepflegten Mehrfamilienhauses.
Sie besitzt folgende Ausstattungsmerkmale:
- Freundlicher, lichtdurchfluteter Flur mit Fenster
- Die Wohnung ist weiß gespachtelt
- Highspeed-Internet (bis zu 1000 Mbit/s) verfügbar
- modernes Tageslichtbad mit Wanne
- Küche mit Fliesenspiegel
- moderner PVC-Belag in allen Räumen
- PKW-Stellplatz möglich, wenn verfügbar
Die Beispielbilder zeigen eine vergleichbare Wohnung.
Gerne stehen wir Ihnen für Fragen und einen Besichtigungstermin zur Verfügung.
Die sanierte, helle sowie freundliche 2-Raumwohnung besitzt einen ansprechenden Grundriss und befindet sich im 1. Obergeschoss eines gepflegten Mehrfamilienhauses.
Sie besitzt folgende Ausstattungsmerkmale:
- Freundlicher, lichtdurchfluteter Flur mit Fenster
- Die Wohnung ist weiß gespachtelt
- Highspeed-Internet (bis zu 1000 Mbit/s) verfügbar
- modernes Tageslichtbad mit Wanne
- Küche mit Fliesenspiegel
- moderner PVC-Belag in allen Räumen
- PKW-Stellplatz möglich, wenn verfügbar
Die Beispielbilder zeigen eine vergleichbare Wohnung.
Gerne stehen wir Ihnen für Fragen und einen Besichtigungstermin zur Verfügung.
Ihr Ansprechpartner
GW Geiseltaler Wohnungsgesellschaft mbH
Eduard-Dörge-Platz 7
06242 Braunsbedra
Deutschland
E-Mail (zentral)
Telefon
034633 9099-99